
质量是企业最好的宣传名片—万科民安江山府
时间如白驹过隙,转瞬即逝!历时3年多的万科民安江山府幕墙施工项目在2021年的金秋十月圆满结束。万科民安江山府幕墙项目是康利达装饰股份有限公司继万科美景世玠幕墙项目后打造的又一个改善型品质楼盘。
万科江山府幕墙项目初次签订合同施工面积仅为示范区7000㎡。在公司的大力支持和项目部成员的共同努力下,因施工质量和现场管控得到甲方充分认可,甲方后续又与我司续签了13000㎡的幕墙施工合同,最终幕墙施工面积合计20000㎡。
据悉,本项目包含了石材幕墙、金属幕墙以及玻璃幕墙,其中石材幕墙占比高达90%。众所周知,石材幕墙最难控制的是色差问题,如施工过程中不注意石材的色差问题,将可能导致整面墙像打满了补丁,严重影响整体效果,拉低建筑档次。
本项目采用的是天然石材(葡萄牙米黄),处理色差就是我们要面临的最大难题之一。万科民安江山府幕墙石材颜色整体为浅色系的米白色,浅色石材幕墙对石材本身的品质要求非常苛刻,若想提高本项目的品质,石材色差控制就成了项目部工作的重中之重。

经过项目部会同深化设计人员多次构思策划,结合以往项目经验,对于石材色差控制项目部制订了三个步骤:
第一步骤:厂家石材大板源头控制。公司安排采购部人员和石材厂家共同挑选石材大板,确保石材大板的颜色及品质满足项目要求,并且一次采购石材总量的90%,确保大面石材为同一批。
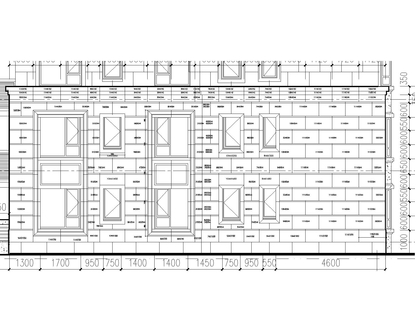
第二步骤:项目部石材下单排版控制。所有石材重新排版,石材厂家不可能完全控制几千乃至上万平方为同一个颜色。因此,项目部将每栋楼、每个面的石材全部排版细化,方便石材厂家切割大板控制颜色,确保每栋楼每个面的颜色一致。
第三步骤:施工现场精细控制。施工工人的现场施工控制是最后一步也是最重要的步骤。因幕墙石材基本上规格不一,石材容易被工人拿乱,一旦石材拿乱按错错位,石材色差控制将前功尽弃。因此项目部首先召开施工全员技术会议,确保每一位工友都知道石材不能乱用,安排专人在施工前对石材进行色差检查等。
项目管理贯穿整个工程的方方面面,稍有纰漏就会产生不同程度的影响,康利达装饰要求每一个项目经理必须加强自我学习,规范化管理项目。规范管理就是把公司的各项规章制度落到实处,严格地履行职责,确保工程质量。
万科江山府项目部全体人员经过三年多的共同努力,幕墙施工已圆满交工,质量经得起业主检验,更顺应万科的标语:“质量好不好,客户说了算”!




二维码
